+91 9040099999

Locality

| Upcoming Projects | Siddhashila EEVVA Punawale Pune 2BHK 3BHK Price Location Floor Plan Review

Punawale Upcoming view: 551

Siddhashila EEVVA Punawale Pune 2BHK 3BHK Price Location Floor Plan Review

EEVVA BY PRJB WAREHOUSING AND LOGISTICS LLP (RERA NO PM1260002503079) PUNAWALE PUNE

RERA No. PM1260002503079

Range ₹ 83 L to ₹ 1.3 Cr

Description

EEVVA

Premium 2 & 3 BHK Residence Punawale, Pune

A New Vision in Punawale

In the growing neighbourhood of Punawale, Pune, a new residential project is taking shape — designed for families who value comfort, smart planning, and a modern lifestyle.

Every detail is being imagined around better living — with natural light, ventilation, and thoughtfully designed spaces that support today’s urban lifestyle.

Located in one of West Pune’s fast-developing areas, the project combines good connectivity with the convenience of nearby essentials, while offering a calm and comfortable living environment. A promising new chapter in modern family living is on the horizon.


Project Highlights

3.5 Acres Land Parcel
3 Towers
4 Levels Parking
24 Storey Tower
60+ Premium Amenities
46,000 sq.ft. Total Amenities
9 Storey Boutique Commercial Development

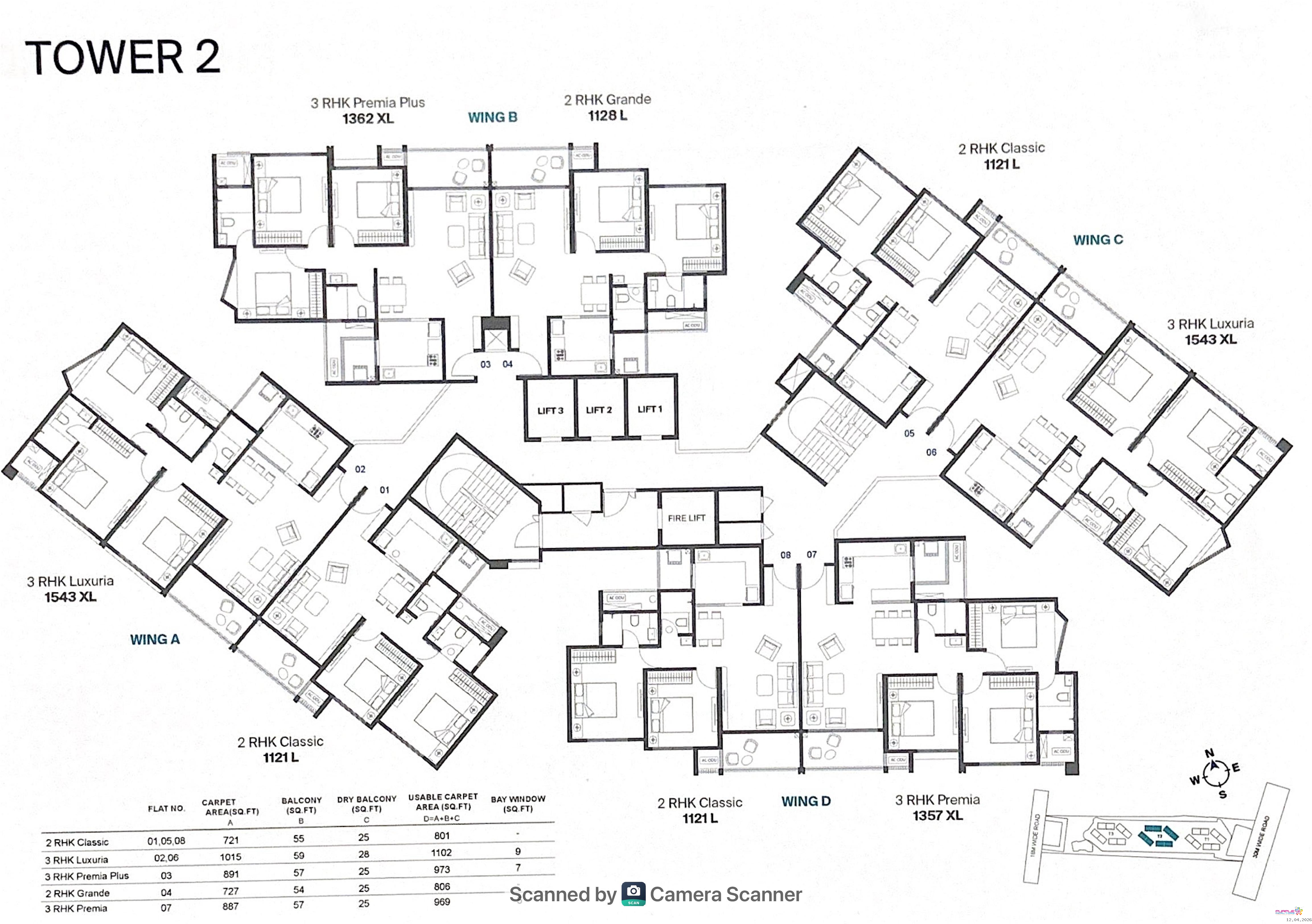
TYPE

2 BHK - Carpet 801 to 806 sqft - 83 Lac Onwards

3 BHK - Carpet 969 to 1102 sqft - 1.01 Cr Onwards

For More Details Call +91 9040099999

Project Specification

STRUCTURE
Earthquake resistant RCC and Aluform frame structure.
MASONRY
Walls shall be structural/non-structural & AAC Blocks.
WALL FINISH & PAINTING
• External walls – Texture finish paint(Make - Nerolac or equivalent)
• Internal Walls and Ceiling Finish - Premium Low VOC Paints. Premium
Quality Acrylic Emulsion Paints. Gypsum Rendered Walls.
FLOORING
• Driveway and parking - Trimix / paver block / high strength tiles.
• Inside Apartment - Double Charged Vitrified tiles of 800 MM X 800 MM
for Living, Kitchen, Dining & Bedrooms.
• Kitchen Dado - 600 MM X 600 MM Up to 600 MM above platform.
• Toilet Dado - 600 MM X 600 MM. Height up to lintel level.
• Bathrooms - Anti Skid Tiles of 600 MM x 600 MM for all Bathrooms.
• Balcony Floor - Anti Skid Tiles of 600 MM X 600 MM
• Lift Lobby -Vitrified tile 600 MM X 600 MM.
• Open staircase – Shall be in decorative tile / NATURAL STONE
• Fire staircase – Shall be in decorative tile / NATURAL STONE
KITCHEN
• Counter – Indian Granite counter with facia and skirting behind.
• L Shaped Kitchens with Service Platforms*
• Window treatment – NATURAL STONE at sill level.
• Stainless steel sink – single bowl (Nirali or equivalent make).
• Sink tab – Domestic water.
• Provision of water purifier with drinking water supply
• Dedicated electrical supply for chimney.
• Electrical Supply for Refrigerator, Oven & Exhaust fan.
UTILITY / DRY BALCONY
• • Water supply with drainage line for washing machine.
Water inlet & Outlet with power supply.
• Electrical supply for Washing Machine
• Dado up to parapet level in Dry Balcony.
• Provision for clothesline to dry clothes
BATHROOM & TOILET
• Dado tiles – 600 MM x 600 MM Height up to lintel level.
• Toilet Floor – Tiles of 600 MM X 600 MM for Bathrooms
• Concealed plumbing for water supply with CP & Sanitary fittings.
• CP fittings shall be of premium quality.
• Sanitary ware shall be of premium quality. – Jaquar or Equivalent
• Electrical supply provision for Exhaust fan in all bathrooms.
• NATURAL STONE architrave with sill for Ventilator.
• Solar water connection to one Master bedroom washroom.
• Electrical supply for Geyser.
DOOR / WINDOWS
• Both Side Laminated Main Entrance Door with Name Plate.
• Internal doors - Flush door with both side laminate finish.
• Balcony Door - Powder coated Aluminium sliding door with
mosquito mesh.
• Digital Lock
• Windows – Powder coated Aluminium sliding windows with
mosquito mesh.
• Windows with invisible grills.
• Window jamb treatment - NATURAL STONE on sill.
ELECTRICAL
• Wires and Cables - Concealed wiring and cabling shall be done.
• Switch Boards - Modular switches shall be of Schneider or
equivalent make
• Distribution board - Shall be of Schneider or equivalent make.
• Intercom facility in living room INBUILT IN VDP.
• Dedicated electrical supply for air conditioning units in each
bedroom and in living hall.
• Earth leakage circuit breaker.
• Wi-Fi provision.
• Electrical 2 (5 AMP) plug points in the terrace
• RFID Parking Stickers
• Provision for Inverter
OTHER
• Tulsi Vrindavan in the terrace.
• Garbage chute
• Hi speed elevators
• EV Charging Facilities.
• Solar Panels
• Rain Water Harvesting

Amenities

Check Gallery Section

Additional Details

Construction:Under Construction

No of Floors:24

Possession:Over All - 31/12/2032 / Tower AVVYA - Dec 30

Total Bldgs./Towers:3

Distance from Project

Airport: 25 Km.

School: 1 Km.

Hospital: 2 Km.

Market: 1 Km.

Railway Station: 20 Km.

Address

Address: Siddhashila and Adi EEVVA - Punawale , Pune JPFJ+QPG, Eevva, Kate Wasti, Punawale, Pimpri-Chinchwad, Maharashtra 411033

City: Pune

State/Country: Maharashtra

Country: India

Project Layout

Video

No Video Available

Enquire and schedule site visit

Fill this form to schedule and appointment